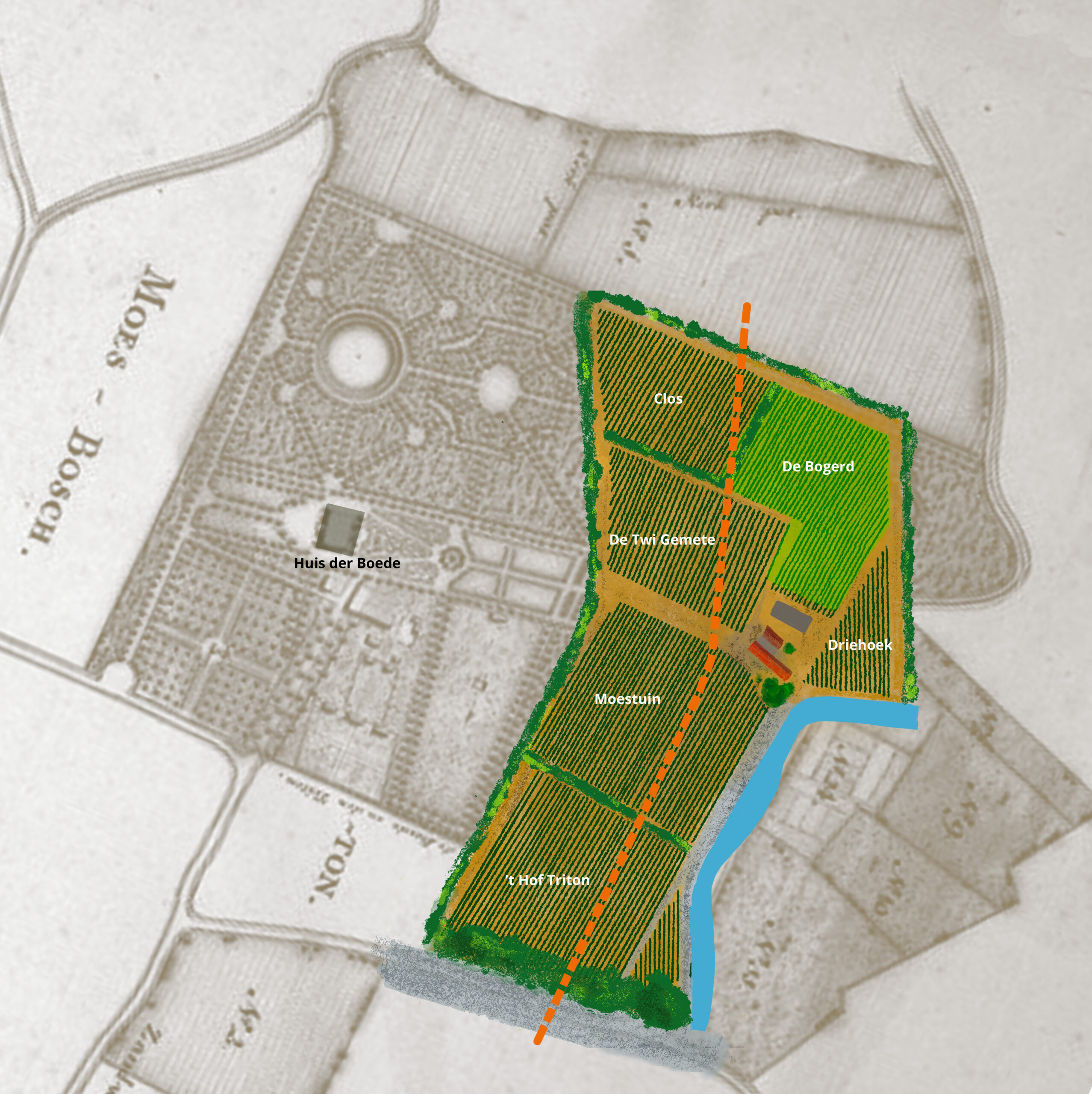
Onze wijnen
- Moestuin
- De Twi Gemete
- De Bogerd
- ‘t Hof Triton
- De Zes Oxhoofden
- Clos & Driehoek
- Tritons Hofjuweel
- Tuin van Zeeland
- Tuin van Zeeland Brut
- Blanc de blancs Brut
- Rosé Brut
Moestuin
De druiven voor deze cuvée groeien op een plek waar de grond al eeuwenlang met zorg wordt bewerkt: het perceel Moestuin. De geschiedenis van dit stuk land voert ons helemaal terug naar de 17e eeuw, toen het diende als de trotse moestuin van Huis Der Boede.
In de 18e eeuw maakten de groenten plaats voor een vruchtbare fruitboomgaard, een traditie van groei en bloei die wij vandaag de dag met onze wijnbouw voortzetten. Zo proef je in deze wijn niet alleen het terroir, maar ook de eeuwenoude ziel van het landgoed.
De Twi Gemete
De druiven voor deze cuvée vinden hun oorsprong op het perceel De Twi Gemete, waar de historie van het Walcherse landschap nog tastbaar is. De naam voert ons terug naar de tijd waarin een ‘gemet’ de maatstaf was voor een dag hard werken: de oppervlakte die een boer met zijn span paarden in één dag kon ploegen.
Op dit bijzondere stuk land, precies twee gemeten groot (of ’twi’ in ons lokale dialect), staat nu onze Pinot gris aangeplant. Zo vloeit het vakmanschap van vroeger naadloos over in de verfijnde smaak van nu.
De Bogerd
De druiven voor deze cuvée groeien op historische grond: perceel De Bogerd. Ooit was dit een bloeiend onderdeel van het 16 hectare grote park van Huis Der Boede. Meer dan een eeuw lang sierden fruitbomen dit stuk land, met onze voorgangers als de allerlaatste generatie fruittelers. De naam is een eerbetoon aan dit verleden; in het Walchers dialect betekent ‘Bogerd’ namelijk simpelweg boomgaard.
‘t Hof Triton
De Souvignier gris voor deze cuvée vindt zijn oorsprong op een plek met een vorstelijk karakter: het perceel ’t Hof Triton. De naam voert ons terug naar het begin van de 18e eeuw, toen hier de idyllische buitenplaats De Triton werd gesticht.
Eeuwen geleden diende dit landgoed als een geliefd zomerverblijf, een oase van rust en ontspanning. Diezelfde lichte, zomerse energie proef je vandaag de dag terug in deze wijn, die diep geworteld is in de rijke historie van dit bijzondere stukje grond.
De Zes Oxhoofden
De druiven voor deze Chardonnay rijpen op het historische perceel De Bogerd. Maar het ware geheim van deze cuvée schuilt in de opvoeding op hout: de Oxhoofden.
Deze naam voert ons terug naar de 17e eeuw, de gloriedagen van de Zeeuwse wijnhandel. In de smalle straatjes van de Middelburgse Kuiperspoort werkten vatenmakers (kuipers) onvermoeibaar aan deze imposante vaten. Een ‘Oxhoofd’ was destijds niet alleen een vat, maar ook een officiële inhoudsmaat voor precies 300 flessen wijn.
Dit jaar hebben wij met trots zes van deze authentieke oxhoofden gevuld met onze beste Chardonnay. Het resultaat is een karaktervolle wijn met een rijke historie, die we met recht De Zes Oxhoofden noemen.
Wist je dat… de Kuiperspoort het kloppend hart van de wijnhandel was?
Wie vandaag door de schilderachtige Kuiperspoort in Middelburg wandelt, stapt rechtstreeks de 17e eeuw in. Dit smalle, met kasseien geplaveide straatje was ooit het domein van het machtige kuipersgilde.
Hier, verscholen tussen de Dam en de Rouaansekaai, werkten ambachtslieden dag en nacht aan houten vaten en tonnen – de onmisbare verpakking voor de bloeiende Zeeuwse wijnhandel. Boven de poort prijkt nog altijd het jaartal 1586, een herinnering aan de tijd dat Middelburg na Amsterdam de belangrijkste handelsstad van de Republiek was. De pakhuizen met hun hijsbalken en diepe kelders herinneren aan de enorme hoeveelheden wijn die hier ooit lagen opgeslagen in de befaamde ‘oxhoofden’.
Foto: Nationaal Archief. De Kuijperspoort in Middelburg
Vondst in de wijngaard. De flessenhals van een Kattekop zoals die in 17e en 18e eeuw werden geblazen. Deze flessen werden gebruikt voor wijn.
Clos & Driehoek
Deze cuvée vertelt het verhaal van twee karaktervolle percelen: Clos en Driehoek. Het perceel De Driehoek dankt zijn naam aan zijn markante geometrische vorm, een uniek herkenningspunt in ons landschap.
Daarnaast vinden we Clos, een naam die knipoogt naar de Franse traditie van ommuurde wijngaarden. Onze ‘muur’ is echter een natuurlijke grens: een dichte haag van zwarte elzen die het perceel omzoomt. Deze groene beschutting creëert een warm microklimaat, waarin onze rode druiven in alle rust en onder gunstige omstandigheden optimaal kunnen rijpen.
Tritons Hofjuweel
Deze bijzondere cuvée van de Souvignier gris vindt zijn oorsprong op een plek met een rijke historie: het perceel ’t Hof Triton. Hier werd rond het jaar 1700 de idyllische buitenplaats De Triton gesticht, die eeuwenlang diende als een geliefd en zonnig zomerverblijf.
Geïnspireerd door de ambachtelijke traditie van ijswijn, hebben we voor deze wijn een uniek proces gevolgd. De druiven worden direct na de oogst ingevroren tot -10 graden Celsius. In onze verticale pers geven de bevroren druiven hun diepste geheim prijs: een uiterst geconcentreerd, stroperig sap.
Het resultaat is een zeer beperkte oplage van een fluweelzachte, edelzoete dessertwijn. Een ware schat van het landgoed, die we met trots Tritons Hofjuweel noemen.
Tuin van Zeeland
Deze cuvée brengt het beste van twee historische werelden samen: de zonovergoten gronden van ’t Hof Triton en de vruchtbare aarde van de Moestuin. Samen vormen zij een eerbetoon aan ons prachtige schiereiland Walcheren, dat al eeuwenlang liefkozend de ‘Tuin van Zeeland’ wordt genoemd.
Net als een wandeling door een bloeiende Zeeuwse tuin, verrast deze wijn met een stuivend fruitig en bloemig boeket.
Tuin van Zeeland Brut
Deze cuvée brengt het beste van twee historische werelden samen: de zonovergoten gronden van ’t Hof Triton en de vruchtbare aarde van de Moestuin. Samen vormen zij een eerbetoon aan ons prachtige schiereiland Walcheren, dat al eeuwenlang liefkozend de ‘Tuin van Zeeland’ wordt genoemd.
De wijn is vervaardigd volgens de traditionele methode. Door de wijn vele maanden sur lie (op de gisten) te laten rijpen, heeft deze een bijzondere diepgang en karakter gekregen. Het resultaat is een verfijnd, stuivend boeket vol bloemige en fruitige tonen. Een feestelijke weerspiegeling van ons Zeeuwse terroir.
Blanc de blancs Brut
Deze verfijnde mousserende cuvée vindt zijn oorsprong op de historische percelen Moestuin en De Bogerd. Voor deze wijn hebben we een bewuste keuze gemaakt: de Chardonnay-druiven zijn uitsluitend geoogst van de wijnranken die geworteld zijn in de jonge zeeklei. Deze specifieke bodem geeft de wijn zijn unieke, minerale karakter en Zeeuwse signatuur.
Volgens de traditionele methode heeft deze wijn alle tijd gekregen om tot rust te komen. Door de wijn vele maanden sur lie (op de gisten) te laten rijpen, is een rijke gelaagdheid ontstaan met een elegante bubbel. Het resultaat is een krachtige maar verfijnde reflectie van ons terroir.
Rosé Brut
Deze bijzondere mousserende cuvée vertelt het verhaal van twee markante percelen: Clos en Driehoek. Het perceel De Driehoek dankt zijn naam aan zijn karakteristieke geometrische vorm, een uniek herkenningspunt in ons Zeeuwse landschap.
Daarnaast vinden we Clos, een naam die verwijst naar de Franse traditie van ommuurde wijngaarden. Onze ‘muur’ is een natuurlijke barrière: een dichte haag van zwarte elzen die het perceel teder omzoomt. Deze groene beschutting creëert een warm microklimaat, waarin onze rode druivenrassen in alle rust en onder de meest gunstige omstandigheden optimaal kunnen rijpen.
Deze wijn is met uiterste precisie vervaardigd volgens de traditionele methode. Door de wijn vele maanden sur lie (op de gisten) te laten rijpen, is een verfijnde complexiteit en een krachtige mousse ontstaan. Een mousserende wijn die de warmte en de vorm van zijn herkomst in elke bubbel meedraagt.


































